| 使用场所及使用要求 | 环境温度:最高温度+40℃、最低温度-15℃、日平均值不大于+35℃; 环境湿度:日平均相对湿度不大于95%,月平均相对湿度不大于90%,温度聚降时,可能凝露; 海拔高度:不高于1000m 地震烈度:不超过8度 安装场所:没有火灾、爆炸危险,没有严重污秽、化学腐蚀及剧烈振动的场所; 对特殊工作条件,由制造厂与用户协商并按标准进行修正。 |
||||||||||||||||||||||||||||||||||||||||||||||||||||||||||||||||||||||||
| 型号、规格系列及其说明 | KYN(SGM-GK28)-12/□-□型铠装移开式户内交流金属封闭开关设备 K —金属铠装 Y—移开式 N—户内 SGM-GK—企业代号 28—设计序号 12—额定电压(kV) □—额定电流(A) □—额定短路开断电流(kA) |
||||||||||||||||||||||||||||||||||||||||||||||||||||||||||||||||||||||||
| 主要技术参数 |
|
||||||||||||||||||||||||||||||||||||||||||||||||||||||||||||||||||||||||
| 主要技术特点 | 1、柜体结构采用敷铝锌钢板经多重折弯组装而成,精度高、重量轻、机械强度高、抗腐蚀及氧化心梗强; 7、二次线敷设于尺寸宽裕的线槽内,工艺美观,便于接线; 8、电缆室有充裕的空间,可联接多根电缆,同时可以观察到电缆室安装情况; 9、快速合分的接地开关具备短路关合能力,用于主回路接地; 10、可与各种功能单元柜直接并柜无需增加转接柜。 |
||||||||||||||||||||||||||||||||||||||||||||||||||||||||||||||||||||||||
| 采购须知(注:即简要说明采购时,需方须提供的基础数据) | 1、主回路方案及单线系统图、排列图及平面布置图; 2、二次原理及接线图、端子排列图(若无端子排列图按制造厂端子排编排); 3、开关柜电器元件的型号、规格及数量; 4、电气设备汇总表; 5、母线桥结构形式及尺寸等要求; 6、特殊环境条件的要求; 7、附件及备品备件的种类和数量。 |
||||||||||||||||||||||||||||||||||||||||||||||||||||||||||||||||||||||||
| 产品图例 |
![]() |
| KYN28开关柜本体及并柜结构图 |
![]() |
![]() |
| KYN28开关柜内部结构图 |
![]() |
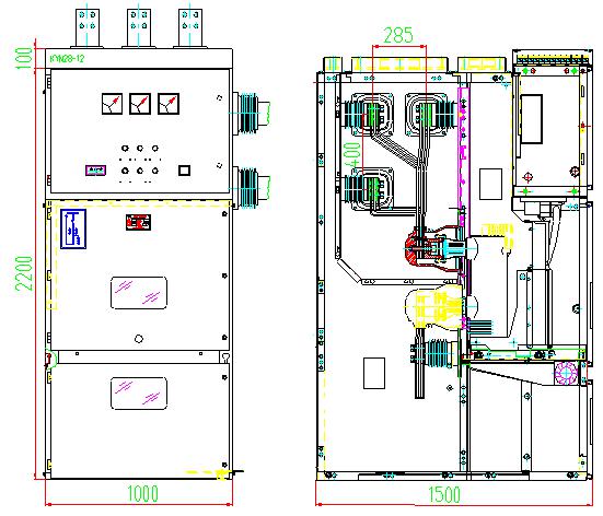
| KYN28开关柜安装尺寸图 |
![]() |
| KYN28开关柜安装示例图1 |